R8 Продаж 3к квартири біля ст.метро Спортивна по Є-Відновлення
163
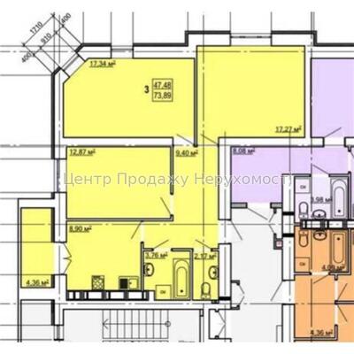
84 м2
Площа
—
8.2 м2
Кухня
7 з 14
Поверх
Опис
Розглядаємо продаж по Сертифікуту ЄВідновлення.
Центр Продажу Нерухомості пропонує купити 3к квартиру біля метро Спортивна, по проспекту Аерокосмічному (колишній Гагаріна).
Квартира знаходиться в цегляному будинку на 7/14 поверху.
Загальна площа - 84 м2, простора кухня - 8,2м2.
Квартира має унікальне планування, 3 окремі великі кімнати, роздільний санвузол, 2 величезні балкони, місце для гардеробної, інші місця для зберігання речей.
Поруч з будинком с/м Таврія В , АТБ, магазин Рибне ремесло,
школи, дитячі садки, відділення пошти, банків, аптеки, кафе.
Гарне транспортне сполучення.
Поруч дві станції метро Спортивна та Левада.
Вас зачарує панорамний вид на місто!
Придбайте цю квартиру для комфортного проживання!
Телефонуйте зараз!
Номер оголошення на сайті компанії: SF-3-077-518-AV.
Додаткова інформація
Заповнюваність профілю
50%
Скарги
1