Продам квартиру ЖК Aria Київ, Миколи Міхновського бул.
1199
ID: 17191307
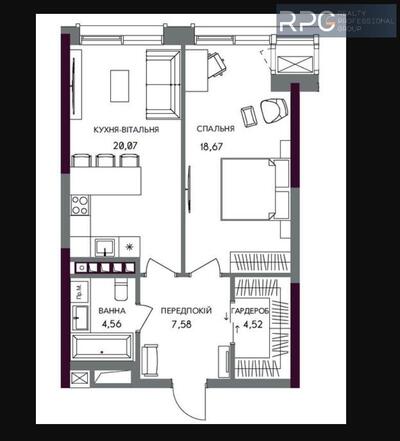
50 м2
Площа
—
—
21 з 25
Поверх
Опис
Продажа однокомнатной квартиры 49,7 м2 в ЖК Ария, бул. Дружбы Народов 13а, Киев, Печерск. Переуступка. Секция 2. 20й этаж, южная сторона. Панорамное остекление. Проект новостройки бизнес-класса состоит из четырехсекционного дома и примыкающего к нему офисно-делового центра. Жилой комплекс возведен на стилобате. У жильцов Aria будет собственный внутренний двор, закрытый от автомобилей и посторонних.
Номер оголошення на сайті компанії: SF-2-390-435-AV.
Додаткова інформація
Заповнюваність профілю
50%
Скарги
немає
Посилання скопійоване до буферу обміну
Не вдалося скопіювати посилання
Номер телефону скопійований до буферу обміну
Не вдалося скопіювати номер телефону
Вашу скаргу успішно подано
Не вдалося подати скаргу




